变送器输出信号偏高或偏低
2022-09-30 亚搏体育在线注册,亚搏体育(中国)
锅炉燃料油(重油)流量调节系统故障之一
萃取塔加料流量调节系统振荡
锅炉液位波动异常及锅炉常见问题分享
2022-09-29 亚搏体育在线注册,亚搏体育(中国)
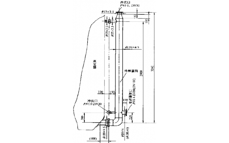
烧碱蒸发器WAX-C320法兰差压变送器液位测量的改进
减压塔塔底液位控制的改进
液氨WAX-C320法兰差压变送器液位指示值偏低
2022-09-28 亚搏体育在线注册,亚搏体育(中国)
锅炉汽包液位波动原因分析